Prospective tenants interested in renting a property through Cosway Estates will need to be aware of the following pre-tenancy costs due prior to the commencement of a tenancy
Reservation Fee
The equivalent of one week’s rent is to be paid to Cosway Estates in order to remove the property from the market and commence referencing. The ‘deadline for agreement’ for both parties is usually 15 days after the reservation fee has been received by a landlord or agent (unless otherwise agreed in writing). Please note, this deposit is non-refundable if you provide false or misleading information. Should the tenancy proceed, Cosway Estates can either refund the reservation fee directly to you or put it towards your rent or security deposit (subject to your consent).
Security Deposit
Prior to the tenancy, you will be required to pay a security deposit capped at no more than five weeks’ rent where the annual rent is less than £50,000, or six weeks’ rent where the total annual rent is £50,000 or above. This money is lodged with My Deposits.
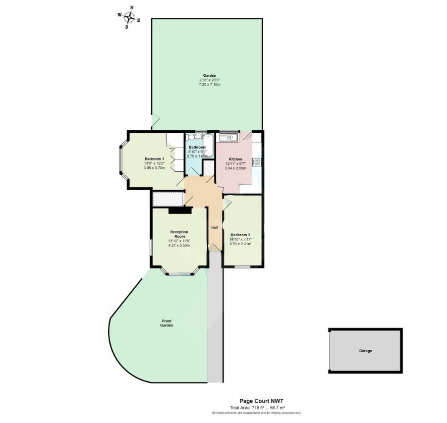
Cosway Estates are pleased to offer for rent this spacious two double bedroom purpose-built ground floor maisonette located near to sought-after local schools and roughly a mile from Mill Hill Broadway's vibrant shopping amenities and Thameslink train Station. This property comprises of a separate fitted kitchen; reception room; two double bedrooms and a bathroom/WC. This property also benefits from having a private rear garden and a garage situated in a separate block. AVAILABLE BEGINNING OF NOVEMBER 2025. Viewings highly advised.
Full Description
Viewing & Disclaimer
Viewing
Please contact us on 020 8959 0011 if you wish to arrange a viewing appointment for this property, or require further information.
Energy Performance Certificate Click here to view the Energy Efficiency Rating and Environmental Impact Rating for this property.
Disclaimer
Cosway NW7 endeavour to maintain accurate depictions of properties in Virtual Tours, Floor Plans and descriptions, however, these are intended only as a guide and purchasers must satisfy themselves by personal inspection.