Refine Search
Location
Radius
Min Beds
Min Price
Min Price
Max Price
Max Price
Location
Radius
Min Beds
Min Price
Min Price
Max Price
Max Price
 

Edgwarebury Lane, Edgware

SOLD

£1,195,000

5
2
4
Gallery (19)

Summary

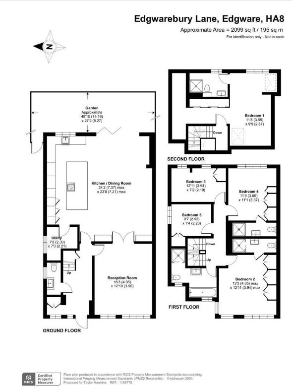
Introducing a stunning 5-bedroom semi-detached house on the highly sought-after Edgwarebury Lane in Edgware. This modern, extended home features a generous driveway that provides ample parking space. The property has been thoughtfully designed with a side extension, significantly enhancing the living area for family gatherings and everyday comfort. Upon entering, you'll be greeted by a bright and airy interior, highlighted by an open-plan kitchen that seamlessly flows into the spacious garden, perfect for outdoor entertaining. A separate reception room offers a cosy retreat for relaxation, while a utility room and a convenient downstairs toilet add to the home’s practicality.With plenty of storage throughout, on the first floor the property includes four bedrooms, and three bathrooms (two en-suites), in addition to the main bedroom on the 2nd floor that also features an en-suite. Situated within the Eruv and conveniently close to schools, shops, and local amenities, this remarkable home perfectly combines modern comfort with a prime location, making it an excellent choice for families. Don’t miss the opportunity to make this beautiful house your home! Joint Sole.

Full Description

Viewing & Disclaimer

Viewing
Please contact us on 020 8959 0011 if you wish to arrange a viewing appointment for this property, or require further information.

Disclaimer
Cosway NW7 endeavour to maintain accurate depictions of properties in Virtual Tours, Floor Plans and descriptions, however, these are intended only as a guide and purchasers must satisfy themselves by personal inspection.

Key Features
  • Modern 5 Bedroom Family Home
  • Loft Conversion
  • Downstairs Toilet And Utility Room
  • Driveway For 3 Cars
  • Side Extension
  • Open Plan Kitchen
  • Within Eruv
IE8 Alert! Cookie Alert!

To get the best possible experience using our website we recommend you upgrade to a modern web browser. More info

Location
Radius
Min Beds
Min Price
Min Price
Max Price
Max Price
Location
Radius
Min Beds
Min Price
Min Price
Max Price
Max Price