Refine Search
Location
Radius
Min Beds
Min Price
Min Price
Max Price
Max Price
Location
Radius
Min Beds
Min Price
Min Price
Max Price
Max Price
 

Bittacy Rise, Mill Hill, NW7

Available

£775,000

3
2
2
Gallery (15)

Summary

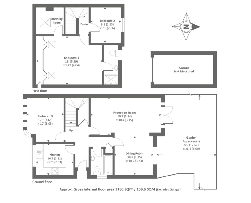
A delightful three-bedroom, two-bathroom semi-detached home offering well-proportioned family living space.The ground floor features a modern kitchen, a spacious open-plan reception and dining area with direct access to a private rear garden — perfect for outdoor living. In addition, there is a modern bathroom and bedroom. Upstairs, the large principal bedroom includes a versatile office or walk-in wardrobe and en-suite, alongside a further double bedroom, providing flexible accommodation ideal for families.Externally, the property benefits from a mature garden, garage and off-street parking, combining practicality with comfort in this desirable Mill Hill location.Bittacy Rise is a well-established residential road within NW7, offering convenient access to local amenities, highly regarded schools, parks, and excellent transport links into Central London via Mill Hill East Underground station.Sole Agent.

Full Description

Viewing & Disclaimer

Viewing
Please contact us on 020 8959 0011 if you wish to arrange a viewing appointment for this property, or require further information.

Energy Performance Certificate
Click here to view the Energy Efficiency Rating and Environmental Impact Rating for this property.


Disclaimer
Cosway NW7 endeavour to maintain accurate depictions of properties in Virtual Tours, Floor Plans and descriptions, however, these are intended only as a guide and purchasers must satisfy themselves by personal inspection.

Key Features
  • Well-proportioned family home
  • Bright and airy living space
  • Two bathroom accommodation
  • Three bedrooms
  • Generous rear garden
  • Excellent lifestyle location
  • Off-street parking
  • Sought-after NW7 location
  • Modern Kitchen
IE8 Alert! Cookie Alert!

To get the best possible experience using our website we recommend you upgrade to a modern web browser. More info

Location
Radius
Min Beds
Min Price
Min Price
Max Price
Max Price
Location
Radius
Min Beds
Min Price
Min Price
Max Price
Max Price