Refine Search
Location
Radius
Min Beds
Min Price
Min Price
Max Price
Max Price
Location
Radius
Min Beds
Min Price
Min Price
Max Price
Max Price
 

Hale Drive, Mill Hill, NW7

Available

£845,000

4
3
3
Gallery (20)

Summary

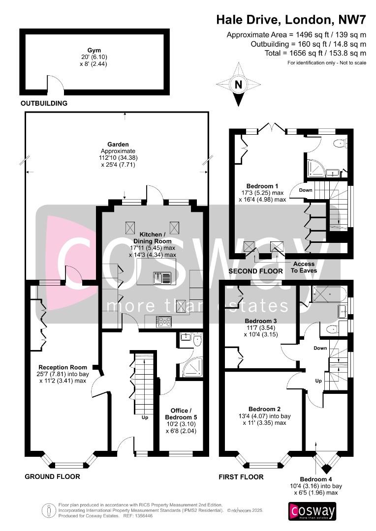
This charming Four/Five-bedroom family home is located on the popular Hale Drive in NW7, just a short walk from Mill Hill Broadway. Offering approximately 1,496 sq ft of well-maintained living space across three floors, the property is presented in good condition throughout and is perfect for modern family living.On the ground floor, you are welcomed by a bright and spacious reception room with a bay window, a separate home office ideal for remote working, and a modern kitchen/dining room that opens directly onto a generous private garden, ideal for entertaining or relaxing outdoors. There is also a convenient w/c / Shower room. The first floor comprises three well-proportioned bedrooms and a stylish family bathroom. The second floor boasts a spacious principal bedroom suite with its own en-suite bathroom and access to eaves storage, offering both comfort and practicality.Ideally located within walking distance of both Mill Hill Broadway and Edgware. The home benefits from excellent local amenities, restaurants, cafes, and fast transport links into Central London via the Thameslink service. With good local schools nearby and a welcoming community feel, this property makes an ideal long-term family home. Sole Agent.

Full Description

Viewing & Disclaimer

Viewing
Please contact us on 020 8959 0011 if you wish to arrange a viewing appointment for this property, or require further information.

Energy Performance Certificate
Click here to view the Energy Efficiency Rating and Environmental Impact Rating for this property.


Disclaimer
Cosway NW7 endeavour to maintain accurate depictions of properties in Virtual Tours, Floor Plans and descriptions, however, these are intended only as a guide and purchasers must satisfy themselves by personal inspection.

Key Features
  • 4/5 Bedroom House
  • Modern Condition Throughout
  • Spacious Kitchen-Dining Room
  • Double Reception Room
  • Main Bedroom With En-Suite
  • Office/5th Bedroom
  • Close To Schools And Amenities
  • Off-Street Parking
  • Garden Room/ Home Gym
IE8 Alert! Cookie Alert!

To get the best possible experience using our website we recommend you upgrade to a modern web browser. More info

Location
Radius
Min Beds
Min Price
Min Price
Max Price
Max Price
Location
Radius
Min Beds
Min Price
Min Price
Max Price
Max Price