Refine Search
Location
Radius
Min Beds
Min Price
Min Price
Max Price
Max Price
Location
Radius
Min Beds
Min Price
Min Price
Max Price
Max Price
 

Holders Hill Gardens, London

Available

£799,950

4
2
2
Gallery (15)

Summary

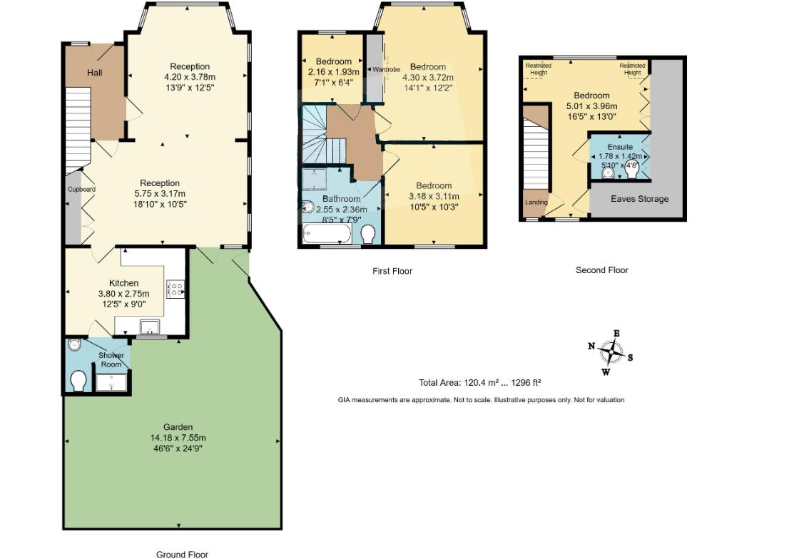
Set within one of Hendon’s most desirable residential enclaves, this beautifully proportioned four-bedroom semi-detached home combines space, comfort, and lifestyle in equal measure. Thoughtfully arranged over three generous floors, it provides the perfect backdrop for modern family living.The ground floor features a through reception room, fitted kitchen, bathroom and ample storage. Large windows and well-balanced proportions fill the home with natural light, creating a welcoming, airy atmosphere. The property also benefits from two bathrooms. At the rear, a private garden provides a tranquil outdoor retreat. Off-street parking adds a practical touch, making daily life easy and convenient.Hendon is renowned for its strong community spirit, excellent schools, and leafy surroundings, with Hendon Park just a short stroll away. Transport connections are superb: Hendon Central (Northern Line) and Hendon Overground (Thameslink) offer swift, direct routes into central London, the City, and major airports perfect for commuters and frequent travellers alike.This is a rare opportunity to secure a distinguished family home in one of NW4’s most sought-after locations.

Full Description

Viewing & Disclaimer

Viewing
Please contact us on 020 8959 0011 if you wish to arrange a viewing appointment for this property, or require further information.

Energy Performance Certificate
Click here to view the Energy Efficiency Rating and Environmental Impact Rating for this property.


Disclaimer
Cosway NW7 endeavour to maintain accurate depictions of properties in Virtual Tours, Floor Plans and descriptions, however, these are intended only as a guide and purchasers must satisfy themselves by personal inspection.

Key Features
  • Spacious Four-Bedroom Home
  • Picturesque Green Outlook
  • Bright Reception & Dining Room
  • Two Bathrooms
  • Low-Maintenance Private Rear Garden
  • 1296 Sq Ft
  • Private Driveway Parking Two Vehicles
  • Excellent Scope To Extend
IE8 Alert! Cookie Alert!

To get the best possible experience using our website we recommend you upgrade to a modern web browser. More info

Location
Radius
Min Beds
Min Price
Min Price
Max Price
Max Price
Location
Radius
Min Beds
Min Price
Min Price
Max Price
Max Price