Refine Search
Location
Radius
Min Beds
Min Price
Min Price
Max Price
Max Price
Location
Radius
Min Beds
Min Price
Min Price
Max Price
Max Price
 

Millway, Mill Hill, NW7

Available

£765,000

4
2
1
Gallery (20)

Summary

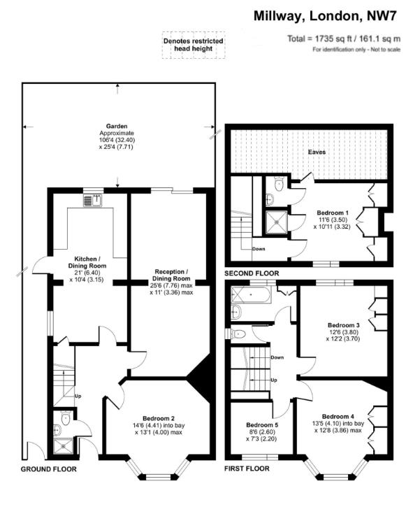
Fantastic Four-Bedroom Semi-Detached Home Just Steps from Mill Hill Broadway. Nestled on one of Mill Hill’s most desirable tree-lined streets, this attractive four-bedroom semi-detached family home is ideally located just moments away from the vibrant shops, cafés, and transport links of Mill Hill Broadway.The property offers a well-balanced layout ideal for modern family living. The ground floor comprises a generous reception room, a separate dining area, and a well-sized kitchen—providing flexible spaces for both relaxing and entertaining. Upstairs, the first floor includes three comfortable bedrooms, a family bathroom, and a separate WC. A large fourth double bedroom occupies the top floor, perfect as a master suite or guest accommodation.With clear potential for extension or redevelopment (subject to planning permissions), this home offers scope to personalise and expand in line with your future aspirations.Outside, a sizeable private garden provides an excellent setting for outdoor gatherings or children's play, while off-street parking adds everyday convenience. Chain Free. Probate Sale.

Full Description

Viewing & Disclaimer

Viewing
Please contact us on 020 8959 0011 if you wish to arrange a viewing appointment for this property, or require further information.

Disclaimer
Cosway NW7 endeavour to maintain accurate depictions of properties in Virtual Tours, Floor Plans and descriptions, however, these are intended only as a guide and purchasers must satisfy themselves by personal inspection.

Key Features
  • 4 BEDROOMS
  • SPACIOUS RECEPTION ROOM
  • BRIGHT DINING ROOM
  • IN NEED OF UPDATING
  • POTENTIAL TO EXTEND STPP
  • CLOSE TO LOCAL SCHOOLS
  • STONES THROW TO MILL HILL BROADWAY
IE8 Alert! Cookie Alert!

To get the best possible experience using our website we recommend you upgrade to a modern web browser. More info

Location
Radius
Min Beds
Min Price
Min Price
Max Price
Max Price
Location
Radius
Min Beds
Min Price
Min Price
Max Price
Max Price