Beautiful Three-Bedroom Duplex Apartment in Prime Mill Hill LocationCosway Estates are delighted to present this stunning and spacious three-bedroom split-level apartment, ideally situated in the heart of Mill Hill.This beautifully presented home features a modern open-plan fitted kitchen and living area, perfect for contemporary living and entertaining. The property offers three well-proportioned bedrooms, including a master bedroom with en-suite shower room, along with a stylish family bathroom, in addition to a utility area and additional reception room. Located just moments from Mill Hill Broadway’s vibrant selection of shops, cafés, and restaurants, and within easy reach of Mill Hill Thameslink station, this property combines convenience with comfort. Mill Hill Park is also just around the corner, offering a lovely green space for relaxation.This exceptional apartment is offered chain-free and ready to move into — early viewing is highly recommended. Chain Free.
Full Description
Viewing & Disclaimer
Viewing
Please contact us on 020 8959 0011 if you wish to arrange a viewing appointment for this property, or require further information.
Disclaimer
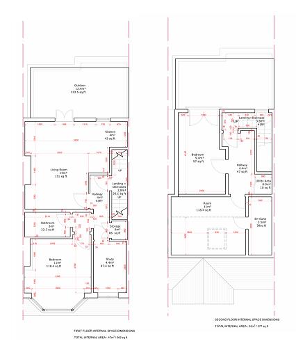
Cosway NW7 endeavour to maintain accurate depictions of properties in Virtual Tours, Floor Plans and descriptions, however, these are intended only as a guide and purchasers must satisfy themselves by personal inspection.