Refine Search
Location
Radius
Min Beds
Min Price
Min Price
Max Price
Max Price
Location
Radius
Min Beds
Min Price
Min Price
Max Price
Max Price
 

Highview Gardens, Edgware

SOLD

£690,000

3
3
1
Gallery (12)

Summary

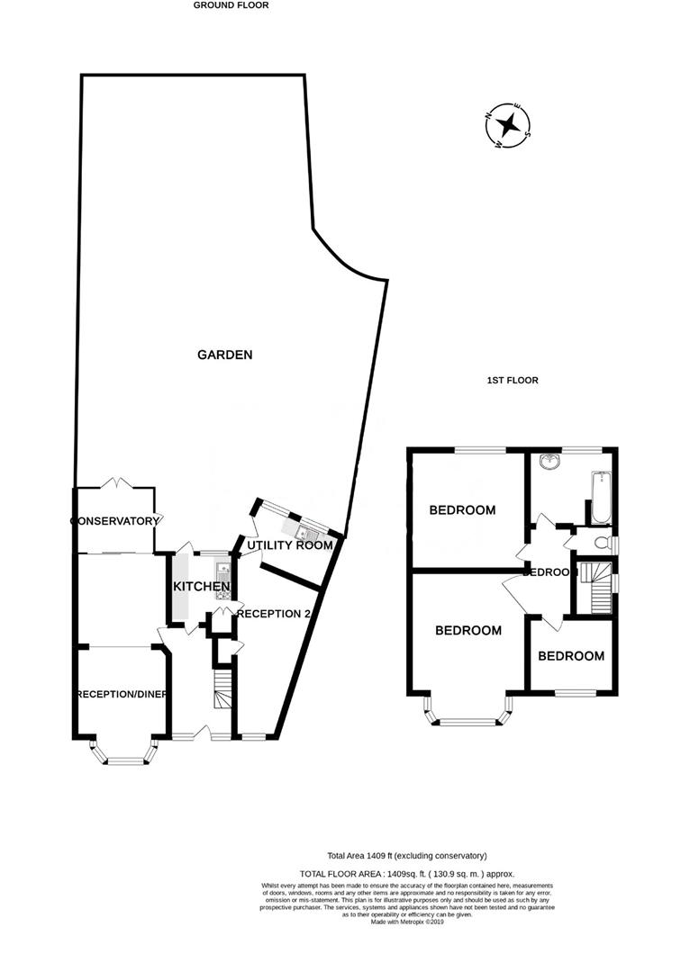
Situated in sought after location on a tree lined road is this substantial and extended exceptional three bedroom semi detached family home located in a prime residential road in Edgware The property is situated on a good sized plot with generous three reception rooms, conservatory, kitchen, utility room, family bathroom and three bedrooms.Externally there is driveway and ample off-road parking, rear patio leading to a large well maintained rear garden. The property also benefits from having further potential to extend Subject to Planning Permission. the property is located within the Eruv and within close proximity to local schools and excellent transport links. Sole Agent.

Full Description

Viewing & Disclaimer

Viewing
Please contact us on 020 8959 0011 if you wish to arrange a viewing appointment for this property, or require further information.

Disclaimer
Cosway NW7 endeavour to maintain accurate depictions of properties in Virtual Tours, Floor Plans and descriptions, however, these are intended only as a guide and purchasers must satisfy themselves by personal inspection.

IE8 Alert! Cookie Alert!

To get the best possible experience using our website we recommend you upgrade to a modern web browser. More info

Location
Radius
Min Beds
Min Price
Min Price
Max Price
Max Price
Location
Radius
Min Beds
Min Price
Min Price
Max Price
Max Price