Refine Search
Location
Radius
Min Beds
Min Price
Min Price
Max Price
Max Price
Location
Radius
Min Beds
Min Price
Min Price
Max Price
Max Price
 

Moorlands Avenue, Mill Hill, NW7

Available

£730,000

4
2
2
Gallery (18)

Summary

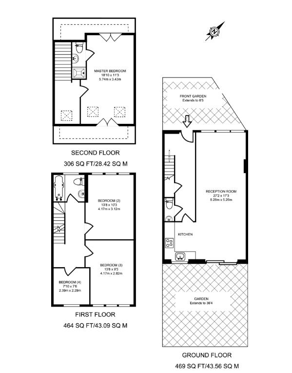
Situated within a quiet cul-de-sac on a popular residential turning in Mill Hill, this well-presented four-bedroom home offers spacious and versatile accommodation arranged across three floors, ideal for modern family living.The ground floor features a bright reception room, providing a comfortable and inviting living space, alongside a well-appointed kitchen offering ample storage and workspace. Both areas provide access to the rear garden, creating a natural flow for everyday living and entertaining.The first floor comprises three bedrooms, offering flexible accommodation suitable for family members, guests, or home office use, complemented by a family bathroom. The second floor hosts an impressive principal bedroom suite, benefiting from generous proportions and the convenience of an en-suite bathroom.Externally, the property benefits from a large private rear garden, providing excellent outdoor space ideal for families, entertaining, or further enhancement.Moorlands Avenue is conveniently located for Mill Hill’s excellent local amenities, including shops, schools, green spaces, and transport links, making this an exceptionally practical and well-connected setting. Sole Agent.

Full Description

Viewing & Disclaimer

Viewing
Please contact us on 020 8959 0011 if you wish to arrange a viewing appointment for this property, or require further information.

Energy Performance Certificate
Click here to view the Energy Efficiency Rating and Environmental Impact Rating for this property.


Disclaimer
Cosway NW7 endeavour to maintain accurate depictions of properties in Virtual Tours, Floor Plans and descriptions, however, these are intended only as a guide and purchasers must satisfy themselves by personal inspection.

Key Features
  • Four bedroom family home
  • Quiet cul-de-sac
  • Accommodation over three floors
  • Bright reception room
  • Well-appointed kitchen
  • Two bathrooms
  • Large private rear garden
  • Sought-after Mill Hill location
  • Modern throughout
IE8 Alert! Cookie Alert!

To get the best possible experience using our website we recommend you upgrade to a modern web browser. More info

Location
Radius
Min Beds
Min Price
Min Price
Max Price
Max Price
Location
Radius
Min Beds
Min Price
Min Price
Max Price
Max Price